Об утюгах: инструкция для «чайников» (но не для рэкетиров)
Вернуться к содержанию номера: «Горизонт», № 2(64), 2025.
— Гладь!
— Что гладь?
— Волосы гладь!
— Зачем?
— Чтобы высохли!
— А утюг на что ставить?
На «хлопок» или на «шёлк»?
— На «синтетику»!
Из к/ф «Семь невест ефрейтора Збруева»
Уровень первый (для ленивых)
Тяжёлые советские утюги выпускало Министерство лёгкой промышленности. Лёгонькой такой промышленности. Сейчас маловесомые утюги делают все, кому не лень, и, надо признать, у них (тех, кому не лень) это получается довольно неплохо. Большинство современных утюгов действительно похожи на настоящие. Ими даже можно качественно гладить, при определённых навыках, конечно. Они красивее, гораздо удобнее и «функциональнее» советских. Правда, не так надёжны, но кого сейчас волнует такая мелочь, как надёжность?
Миром утюгов правят дизайн (англ. design), то есть проектирование, основанное на принципах красоты и изящности, а также юзабилити (англ. usability) — новомодное заморское понятие, обозначающее простоту и удобство в использовании. Правят настолько успешно, что порою забывают о старой доброй эргономике (от греч. érgon — работа и nómos — закон) — науке, изучающей физические возможности и особенности поведения человека во время выполнения какой-либо работы.
Утюг — не телевизор, он предназначен не для отдыха и развлечений, а для выполнения работы — рутинной, однообразной, мало кому интересной, но так необходимой в хозяйстве. А большинство дизайнеров и юзабилистов далеки от процесса глажения, поэтому позволяют себе при разработке утюгов делать конструктивные ошибки. Как их выявлять, описано ниже.
О чём же забывают все эти специалисты с нетрадиционным образованием, создавая свой очередной хорошо продаваемый гладильный шедевр? О том, что всякие там дизайнерские решения не должны быть помехой в использовании утюга по назначению, а его внешний вид — это всего лишь дело вкуса.
На что продавцы чаще всего обращают внимание покупателя?
1. На изящный эргономичный дизайн.
Не будем путать тёплое с мягким! Изящность — это одно, а эргономичность — совершенно иное. Бо́льшая часть потуг дизайнеров изменить внешний вид корпуса утюга над его неизменной за сотню лет формой подошвы напоминает старый анекдот о том, что кусок чёрного хлеба становится гораздо вкуснее, если на него намазать чёрную икру. А то, что вещи не становятся выглаженными сами собой только при одном включении чудо-утюга, потом всегда можно будет списать на неумелость гладильщицы.
2. На малый вес, благодаря которому рука будет меньше уставать.
Процесс глажения предполагает не только нагрев, но и механическое давление на ткань. Чем тяжелее утюг, тем меньше на него нужно давить. Напротив, если утюг лёгкий, то отсутствие веса необходимо компенсировать надавливанием на ручку, иногда налегая всем телом. В результате возникает дополнительная нагрузка на позвоночник. Короче говоря, спина потом болеть будет. Если же у вас постоянно ноет запястье (отдел руки, соединяющий кости предплечья с костями кисти), то проблема тут, скорее всего, не в утюге, а в чём-то более серьёзном и запущенном. Срочно обратитесь к врачу!
Кстати, компьютерная мышка, которая гораздо легче самого лёгкого утюга, часто становится причиной так называемого «синдрома запястного канала» — воспаления нерва. В результате этого воспаления нарушается подвижность пальцев, немеет кисть и появляется та самая боль в запястье, на которую так любят жаловаться домохозяйки.
3. На автоматическое отключение «забытого» утюга.
Это встроенное в утюг электронное приспособление действительно будет полезно для рассеянных людей. Если оставить такой модернизированный утюг без движения в горизонтальном положении более чем на 20—30 секунд или в вертикальном положении более чем на 8—10 минут, то он автоматически отключится.
4. На непревзойдённую степень скольжения.
Скольжение — это процесс движения по гладкой поверхности, не отрываясь от неё. Степень скольжения определяется коэффициентом трения скольжения. Коэффициент зависит от материала и площади соприкосновения трущихся поверхностей, их шероховатости, влажности, температуры, других параметров и находится в пределах от нуля до единицы. Чем ближе коэффициент к нулю, тем легче скользить. Степень скольжения определяется опытным путём, а вот её непревзойдённость… Может, маркетологи изобрели коэффициент трения скольжения меньше нуля? Точно! Нуль они и превзошли. Титанический труд. Те ещё изобретатели!
5. На оригинальность конструкции.
М-да… За последние лет сто конструкция утюгов принципиально не менялась. В чём же оригинальность конструкции? Прикрутили ручку не на подошву утюга, а сбоку? Сделали два шнура? Подошва не плоская, а в виде полусферы? Прилепили к утюгу фонарик, чтобы можно было гладить и в темноте? Теряюсь в догадках!
6. На прочность антипригарного покрытия подошвы.
…и даже показательно царапают её отвёрткой.
Ну, здесь они, мягко говоря, лукавят. Прочность нанесения на подошву покрытия (кстати, не антипригарного, а антиприлипающего) проверяется, во-первых, не на холодном, а на разогретом (!) до 150оС утюге, а во-вторых, не туповатой китайской отвёрткой, а бритвенным лезвием или остроконечным скальпелем. Чувствуете разницу? Нет? Тогда попробуйте побриться отвёрткой.
Настоящие испытания проводятся методом «сетчатых надрезов», который, если объяснять на пальцах, заключается в следующем: на четыре участка разогретой подошвы наносится по шесть параллельных надрезов длиной не менее 10 мм и расстоянием между надрезами 1 мм. Далее утюг охлаждают и с помощью специальной липкой ленты снимают с его подошвы отслоившуюся часть покрытия. Затем исследуют то, что получилось. Поверьте на слово, царапины обязательно будут, и отслоение покрытия — тоже.
Проверяем электроутюг
Итак, внимательно осматриваем корпус утюга. На нём не должно быть трещин, царапин, вмятин, потёртостей, следов коррозии.
Поверхность подошвы должна быть гладкой и отполированной, боковые грани — без сколов и царапин. Особенно это важно, если подошва с полимерным или керамическим покрытием. Любая, даже крохотная царапина или еле заметный скол — и покрытие на их месте отслоится. Это вопрос ближайшего времени.
Антиприлипающее покрытие на подошве может быть шершавым. Это не дефект. Такое покрытие гораздо долговечнее гладкого благодаря минеральным добавкам.
Далее проверяем прочность механических креплений. Для этого одной рукой обхватываем подошву, другой берёмся за ручку и пытаемся расшатать корпус утюга. Детали не должны смещаться относительно друг друга, а зазор между подошвой и защитным кожухом должен быть одинаковым и неизменным по всему периметру подошвы.
Ручка утюга не должна быть скользкой. Лучше, если она будет из рифлёного пластика или с прорезиненной накладкой. Накладка не должна быть перекошена или шататься.
Идеальный вариант покрытия ручки — натуральная пробка, но она обычно встречается только в профессиональных утюгах.
Кнопки и регуляторы не должны болтаться или выпадать. Если на ручке рядом расположены две кнопки, то их форма, размер, а также расстояние между ними должны быть такими, чтобы невозможно было случайно нажать сразу обе. Вот оно — то самое требование эргономики, о котором забывают дизайнеры!
Берём утюг в руку, как при глажении. Между ручкой и защитным кожухом должно быть достаточно пространства, чтобы ваши пальцы не касались диска терморегулятора. Это к вопросу об удобстве пользования.
Пальцы, случайно задевающие за диск терморегулятора, будут всё время его проворачивать, сбивая установленную температуру нагрева подошвы.
Сам диск терморегулятора несколько раз крутим по часовой стрелке и против неё до упора, а при достижении крайних положений ещё секунды 2—3 продолжаем прикладывать усилие, как при закручивании лампочки в патрон. Дело в том, что между диском терморегулятора и самим терморегулятором имеется термостойкий, но очень хрупкий пластиковый переходник. И если производитель сэкономил на материале этого переходника, то он очень быстро сломается. Практически сразу. А зачем вам утюг без возможности регулировки температуры?
Ещё одна очень ненадёжная деталь — это «трещотка» под диском терморегулятора.
Между соседними щелчками диск должен как бы пружинить в обе стороны вращения. Это означает, что стопорная пластинка трещотки прогибается каждый раз, когда перескакивает через зубцы, расположенные с обратной стороны диска. Звук при этом получается очень звонкий.
Глухой звук трещотки означает, что стопорная пластина либо не обладает достаточной гибкостью, либо вообще не гнётся. Из-за стирания такой пластины или зубчатки (а это произойдёт довольно быстро) терморегулятор перестанет фиксироваться в нужном положении.
Шнур должен быть длиной не менее (!) 2 м от точки его ввода в корпус утюга до точки ввода в штепсельную вилку. При этом стандарт (1) разрешает округлять длину шнура в сторону ближайших 5 см, а не 10 или 15, как это обычно бывает.
Внешняя тканевая оплётка шнура не должна лохматиться, нитки не должны смещаться относительно друг друга при скручивании шнура, а плетение должно быть плотное и равномерное, без петель или обрывов. Оплётка необходима для защиты шнура на случай, если тот попадёт под разогретую подошву.
Количество отверстий в подошве для пара и их диаметр не нормируются. Чем меньше их диаметр и больше количество, тем равномернее пар будет распределяться между подошвой и тканью, но (!) тем быстрее отверстия зарастут накипью и тем сложнее их будет чистить.
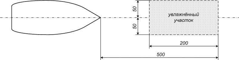
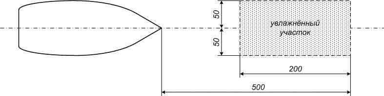
Разбрызгиватель, согласно стандарту (2), должен обеспечить увлажнение 200 см2 поверхности после трёхкратного нажатия на кнопку механизма разбрызгивателя. При этом дальняя граница увлажнённого участка должна находиться на расстоянии не более 50 см от передней части подошвы утюга, а ширина увлажнённого участка должна быть не менее 10 см.

Наполняем водой ёмкость, ставим утюг на стол, три раза нажимаем на кнопку, измеряем размеры мокрого пятна и расстояние до него.
Включаем утюг, терморегулятор выставляем на максимальное значение. Ждём, пока утюг нагреется и по достижении заданной температуры сам выключится.
Остался ещё один маленький нюанс, но о нём на третьем уровне.
— Что-что-что-что?!
Да я за это в него утюгом запущу!
— Минуточку… Больше килограмма!
Это посылка получается. Сейчас мы её доставим.
Из м/ф «Зима в Простоквашино»
Уровень второй (для продвинутых)
Знаете ли вы, что?
- Законом штата Огайо (США) запрещено гладить кошку утюгом — правда, не уточняется каким: холодным или горячим. В остальных штатах можно.
- Туристам, прибывающим на Кубу, в числе прочего запрещено ввозить в страну утюги и любые электрические запчасти к ним.
Обрывки истории
На что похож утюг? На корабль. Почему именно на него? А почему бы нет? Ведь европейцы прозвали верблюда «кораблём пустыни», а арабы, наоборот, называют морские суда «верблюдами моря». У каждого возникают свои ассоциации.
Я же не требую именовать утюг «кораблём постели», точнее постельного белья. Просто предлагаю немного пофантазировать. Ведь, согласитесь, нечто корабельное в утюге однозначно прослеживается.
Давным-давно неизвестный изобретатель, возможно просто поглядев на корабль и оценив его форму, придумал ту самую оптимальную подошву для утюга, улучшить которую до сих пор не под силу ни одному современному дизайнеру.
А почему же у корабля такая форма? Для начала взглянем на его теоретический чертёж.
Чертёж любого судна делается в трёх проекциях. Первая проекция называется «бок» и показывает судно со стороны правого борта. Вторая проекция, выполненная со стороны днища судна, называется «полуширота». На чертежах в данной проекции изображают только половину судна, отсюда и приставка «полу-» в её названии. Делается это для экономии места на чертеже. И, наконец, третья проекция, называемая «корпус», показывает поперечное сечение. Причём одна половинка проекции показывает вид со стороны носа судна, а вторая — со стороны его кормы (задней части корпуса корабля).

Геометрические характеристики (длина, ширина, высота борта, осадка), а также их соотношение определяют навигационные качества любого судна, такие как плавучесть, скорость, устойчивость на курсе, манёвренность и другие.
Чем больше отношение длины к ширине, тем лучше судно держит курс, чем меньше — тем у судна лучше манёвренность. Поэтому всегда ищется оптимальное соотношение в зависимости от типа судна и его назначения.
Заострённый нос с последующим плавным расширением бортов в надводной части нужны, чтобы встречать волну мягко, без ударов, как бы рассекая её и при этом не подныривая. А плоская корма характерна для плоскодонок или глиссирующего (скользящего по водной глади) судна.
Плавное скольжение и манёвренность — это то, что нужно и для хорошего судна, и для хорошего утюга. И ещё много чего. Но отвлечёмся от романтики и опустимся на бренную землю, точнее на гладильную доску, где нас заждался утюг.
Немного теории
Любой утюг состоит из подошвы, встроенного в неё электронагревателя (чаще всего трубчатого), ручки, защитного кожуха, шнура питания со штепсельной вилкой, светового индикатора (иногда двух) и биметаллического терморегулятора с диском.

Каким бы красивым ни казался утюг, но без хорошей подошвы качественное глажение не получится, как ни крути регулятор. А вот подошвы бывают следующие:
Алюминиевая с накладкой из полированной нержавеющей стали. Фактически на алюминиевую подошву надевают чехол из листовой нержавеющей стали толщиной в лучшем случае 0,4 мм. Края подошвы закатывают, как консервную банку. Выглядит красиво — правда, недолго. Такая подошва быстро царапается о пуговицы и застёжки-молнии, полировке не поддаётся: лист нержавейки слишком тонкий для данной операции. А ещё из-за его неплотного прилегания между подошвой и листом возникает воздушная прослойка, являющаяся теплоизолятором.
Из нержавеющей стали. Нержавейка гораздо дороже алюминия, но и гораздо прочнее. Она разогревается медленнее и равномернее, соответственно медленнее остывает. Легко чистится. Подошвы для профессиональных утюгов делают именно из нержавеющей стали. А ещё такую подошву можно повторно отполировать, продлив тем самым её срок службы на многие годы. Если, конечно, она не хромированная. В противном случае покрытие будет уничтожено.
Алюминиевая с антиприлипающим покрытием. Исходным материалом для такого покрытия является политетрафторэтилен (ПТФЭ) — он же ТефлонТМ или фторопласт, который до 50-х годов использовался исключительно в оборонной промышленности. К подошве с полимерным покрытием не прилипает грязь с недостиранных вещей или поплавившаяся синтетическая ткань, но (!) только до появления первых царапин или сколов на покрытии. В местах же этих самых царапин и сколов прилипает всё подряд и потом плохо счищается.
Алюминиевая с керамическим покрытием. Керамика позволяет утюгу хорошо скользить по любой ткани, но она (керамика) на бытовых утюгах — штука хрупкая. И даже специальная кромка на боковых гранях подошвы не всегда спасает керамическое покрытие от сколов. Поэтому такой утюг нельзя ронять.
Немаловажный параметр для любой подошвы — это равномерность её нагрева.
На равномерность нагрева подошвы влияет не только материал, из которого она изготовлена, но и форма, а точнее расположение нагревательного элемента в подошве, его мощность, а также временны́е параметры срабатывания терморегулятора.
Подошву нагревает трубчатый электронагреватель (ТЭН). Чем большую площадь подошвы он занимает, тем равномернее будет её нагрев. И наоборот.
Терморегулятор позволяет не только гладить все типы тканей одним утюгом, зафиксировав температуру подошвы на определённом уровне, но и защищает ТЭН от перегрева. При этом максимальная температура подошвы утюга не должна превышать 200оС.
Если утюг с пароувлажнителем или разбрызгивателем, то у него обязательно имеются ёмкость для воды с заливной горловиной, регулятор подачи пара, а также испарительная камера, куда вода попадает каплями и из-за высокой температуры превращается в пар. Тот выходит наружу через специальные отверстия в подошве.
Технические характеристики электроутюга
Номинальная потребляемая мощность (Вт) — мощность, которую потребляет утюг в момент, когда нагреватель включён. Она указана на маркировочной табличке. Правда, реальная потребляемая мощность редко когда совпадает с заявленной, но это уже совсем другая история.
Средняя потребляемая мощность (Вт) — отношение потребляемой электроэнергии за пять последовательных циклов работы в установившемся тепловом режиме к суммарной продолжительности этих циклов.
Цикл работы утюга (с) — период времени, когда нагреватель работает, и следующий за ним период времени, когда нагреватель отключён терморегулятором, то есть не работает.
Установившийся тепловой режим утюга — это такой режим работы утюга, который наступает через 30 минут после его включения в сеть питания.
Средняя температура подошвы утюга (оС) — это среднее арифметическое значение минимальных и максимальных температур в центре подошвы за пять циклов терморегулятора в установившемся тепловом режиме утюга.
Площадь увлажнения разбрызгивателем (м2) — площадь прямоугольника, очерченного вокруг увлажнённого участка.
Вопросы и ответы
Что обозначают точки на регуляторе?
Это не просто точки, а стандартизированные символы условий глажения. Каждому из этих символов соответствует средняя температура в центре подошвы, которая должна находиться в стандартизированных допустимых пределах, а также типовые ткани из волокон, допускаемые к глажению при указанных температурах:
● температура в центре подошвы 70—110оС (капрон, нейлон)
●● температура в центре подошвы 100—150оС (вискоза, шерсть)
●●● температура в центре подошвы 140—200оС (хлопок, лён)
А как выставлять стандартное количество пара?
Количество пара не стандартизировано. Его определяют на глазок. Достаточно запомнить или записать следующее: хлопок гладится при большом количестве пара, хлопок с добавлением полиэстера — при небольшом, вискозу гладят с паром или без него, а хлопок со льном или лён требуют максимальное количество пара, какое только способен выдать утюг.
Как определяется центр подошвы утюга?
Центр подошвы утюга — это точка на продольной оси подошвы утюга, находящаяся посередине между её вершиной и основанием.

Как правильно: «гладить» или «утюжить»?
Правильно и так, и так. Главное — это не обжечься или не ошпариться!
Глаженье — это процесс механического выравнивания тканей на плоской поверхности подошвой утюга, нагретой до высокой температуры. А утюжение — это специальный термин, обозначающий профессиональный подход к процессу глажения с применением не только высокой температуры и водяного пара, но также особых приёмов и доведённых до автоматизма движений. В процессе утюжения ткань не просто выравнивается. Ей придаётся определённая форма (не всегда плоская), утраченная после стирки или химической обработки, ликвидируется растянутость в определённом направлении и многое другое.
Что считается подставкой утюга?
Либо отдельная съёмная часть утюга, либо конструктивный элемент его корпуса, позволяющие во время перерывов в процессе глажения ставить утюг на поверхность так, чтобы его подошва ничего не касалась.
Что такое вспомогательные принадлежности для утюга?
Например, отдельные (съёмные) подставки или мерный стаканчик для воды, входящие в комплект утюга, но никак не специальная тряпочка для протирки подошвы или что-либо ещё за отдельную плату.
Что такое очёсы?
Это скапливающаяся со временем внутри утюга пыль, настолько плотная, что похожа на вату, только серо-коричневого цвета. Попадает она в утюг через технологическую щель между подошвой и защитным кожухом. Пыль желательно периодически вычищать, чтобы она не воспламенилась, если, конечно, производитель заранее не позаботился о том, чтобы его утюг не поддавался разборке.
Как работает система защиты от капель?
Очень просто. Между резервуаром для воды и камерой парообразования ставится клапан из уже знакомой нам биметаллической пластины, которая изгибается в зависимости от температуры подошвы. При температуре ниже ста градусов клапан с характерным щелчком закрывается, прекращая подачу воды из резервуара.
Для чего нужна система защиты от капель?
При глажении некоторых видов тканей, например шёлковой, температура подошвы слишком мала, чтобы остатки воды внутри камеры парообразования испарились. Конструкция утюга обычно не позволяет слить из него всю воду без остатка и потом гладить без применения пара. Несколько капель всё равно останется, а вот эти самые капли вытекут в самый неподходящий момент времени и оставят пятна на ткани.
Система же защиты от капель позволяет переходить с высокотемпературного режима на низкотемпературный с наполненным водой резервуаром, не боясь при этом испортить ткань.
А бывают беспроводные утюги?
Бывают. Чугунные. Ещё наши прабабушки ставили их на конфорку, чтобы хорошенько разогреть. А если серьёзно, то существуют редкие экземпляры современных электроутюгов со специальными подставками, работающими по принципу индукционной плиты. Сто́ят они безумно дорого (плата за оригинальность), но при этом имеют существенный недостаток: если в утюге со шнуром температура нагрева подошвы регулируется автоматически, то так называемый беспроводный утюг надо вовремя (!) ставить на подставку, да ещё и на определённый промежуток времени, который зависит от необходимой температуры. В общем, как тот самый прабабушкин утюг, только не такой надёжный, напичканный электроникой и совсем по другой цене.
Что такое «паровой удар»?
Паровой удар — это кратковременная усиленная подача пара, которая происходит в результате впрыскивания в испарительную камеру большой порции воды. Перед этим подошва утюга разогревается до максимальной температуры.
Что такое «режим вертикального отпаривания»?
Это возможность подачи пара, когда утюг находится в вертикальном положении.
Что такое «сапфировая» подошва?
Очень изящный рекламный ход, придуманный хитрыми маркетологами для продвинутых домохозяек. Ну какая домохозяйка не знает, что сапфир — это драгоценный камень, который применяется в ювелирных украшениях, и что за него никаких денег не жалко?
Наверное, та самая домохозяйка, которая не догадывается, что сапфир — это оксид алюминия Al2O3 с различными примесями, а покрытие для подошвы утюга делают из искусственного (!) сапфира, точнее даже не из него самого, а из пыли, которая остаётся после механической обработки искусственных кристаллов, изготавливаемых в промышленных масштабах. Так, например, в харьковском Институте монокристаллов ещё в 2008 году был выращен искусственный сапфир массой аж 45 кг!
Сапфировая пыль применяется для изготовления антибликовых покрытий на стекла для часов и оптических прицелов. Из самих же искусственных сапфиров делают, например, бронебойное стекло или эндопротезы (искусственные суставы).
Можно ли заливать в утюг дистиллированную воду?
Не только можно, но и нужно. Дистиллированная вода в принципе исключает появление накипи, которая покрывает стенки парообразовательной камеры и забивает отверстия для пара в подошве утюга. Проверено на советском утюге с тридцатилетним стажем безупречной работы. Да продлит знак качества его дни!
Тогда почему производители настоятельно рекомендуют её не использовать?
Рекомендовать, конечно, они рекомендуют, вот только не утруждают себя объяснениями, зачем это надо делать. Считают, наверное, что все им должны верить на слово, как в церкви.
Тем не менее подобные голословные рекомендации помогают успешно продавать сменные картриджи, патроны и фильтры от накипи для утюгов, всякие там протирки, обдирки, разные очистители и растворители. А ещё в случае поломки утюга позволяют всё свалить на неправильный водопровод. Но давайте лучше дадим слово специалистам, мнениями которых пестрят глянцевые журналы типа «Шиза» или «Отвали». Я же обнаружил их в Интернете «методом случайного Гугла». Фамилии специалистов не разглашаются по этическим соображениям.
Анна П. — бред-менеджер по марке «Биципс»: дистиллированная вода может содержать органические или минеральные вещества, концентрация которых при нагревании утюга увеличивается…
Юлия Л. — бред-менеджер по марке «Фекаль»: дистиллированная вода труднее испаряется, и она может разрушить силиконовое покрытие в камере испарения…
Екатерина Ц. — бред-менеджер по марке «Босхг»: мы рекомендуем использовать только чистую водопроводную воду без каких-либо добавок, это обусловлено особенностями конструкции утюгов…
Так и хочется ответить каждой словами Скрипача из к/ф «Кин-дза-дза!»: «Девочка, вы тут самые умные? Это вам кто-нибудь сказал или вы сами решили?» Дистиллированная вода (лат. aqua destillata) тем и отличается от водопроводной, что в ней практически нет никаких органических или минеральных веществ. Получают её в специальных аппаратах — дистилляторах методом кипячения всё той же водопроводной воды с последующей конденсацией пара. И ничто не мешает в испарительной камере утюга ей вновь превратиться в пар.
Температура кипения у дистиллированной воды всего лишь на доли градуса меньше, чем у водопроводной, но это означает, что испаряется она даже лучше пресной и — главное — не оставляет после себя никаких следов. А вот если бы она силикон разрушала, то силиконовые имплантаты (изделия медицинского назначения, используемые для вживления в организм), которые применяются, например, для увеличения женской груди, попросту растворялись бы в ней. Ведь организм взрослого человека состоит на 70—80 % из воды. А дистиллированная вода… хм, как бы это проще объяснить? В общем, она входит в состав любой другой воды.
При этом она, даже если вы не можете с первого раза правильно произнести слово «дистиллированная», в отличие от того же силикона, не может быть причиной аутоиммунных заболеваний (это когда чужеродный объект провоцирует патологическую выработку антител против здоровых нормальных тканей организма, из-за чего развивается воспаление, а здоровые ткани повреждаются или вообще разрушаются).
Короче говоря, ни одного внятного аргумента в пользу специальных жидкостей для утюгов вместо дистиллированной воды мне найти не удалось.
— А чё нас трое-то?
— Мы с Утюгом — вместе.
Из к/ф «Брат»
Уровень третий (для пытливых)
Проверить равномерность распределения температур по поверхности подошвы без пирометра или тепловизора элементарно просто! Для этого 10 листов обычной офисной бумаги формата А4 плотностью 80 г/м3 кладём на ровную поверхность (идеальный вариант — деревянную), между пятым и шестым листами кладём ксероксную термобумагу. Можно, конечно, использовать чеки из супермаркета, но их понадобится очень много и полученную картинку придётся потом складывать, как пазлы, когда чеки разлетятся.
Разогреваем утюг без воды (!) до максимальной температуры. Для этого выставляем регулятор температуры в крайнее максимальное положение, ждём, пока утюг нагреется и отключится. Сразу после этого ставим утюг подошвой на бумагу, прижимаем его рукой на 4—5 секунд. Поднимаем утюг, смотрим на термический отпечаток его подошвы.


В идеале отпечаток должен быть равномерно окрашен, но реальный отпечаток всегда бледнее по краям, особенно возле вершины и основания подошвы. В местах, где у подошвы находятся отверстия и борозды для пара, на отпечатке будут светлые пятна — это нормально.
В любом случае чем равномернее окрас, тем лучше.
На иллюстрациях сверху новый недешёвый утюг с алюминиевой подошвой, керамическим покрытием и отверстиями для пара, внизу — старый советский с подошвой из нержавейки. У первого явно перегрет центр, при этом вершина и края гораздо холоднее и прогреты неравномерно. У второго от вершины подошвы до её центра просто идеальная равномерность распределения температур. Но чем ближе к основанию, тем температура ниже.
Шпаргалка
1. Дизайн — хорошо, а эргономика всё равно важнее.
2. Антипригарное покрытие наносится на сковородки, а на утюги — антиприлипающее.
3. Делая лёгкие утюги, производитель заботится не о вашем здоровье, а об уменьшении своих затрат на материалы, из которых изготавливаются подошвы утюгов.
4. Пароувлажнитель и разбрызгиватель — не одно и то же, хотя ёмкость для воды у них может быть общей.
5. Вспомогательные принадлежности входят в комплект утюга, а не продаются за отдельную плату. Всё, за что нужно заплатить дополнительно, вспомогательными принадлежностями к утюгу не является.
Примечания
(1) ГОСТ 307.2-95 Межгосударственный стандарт. Электроутюги бытового и аналогичного назначения. Методы измерения рабочих характеристик.
(2) ГОСТ 307.1-95 Межгосударственный стандарт. Электроутюги бытовые. Технические условия.